Дом-баня из бруса Эста

звоните
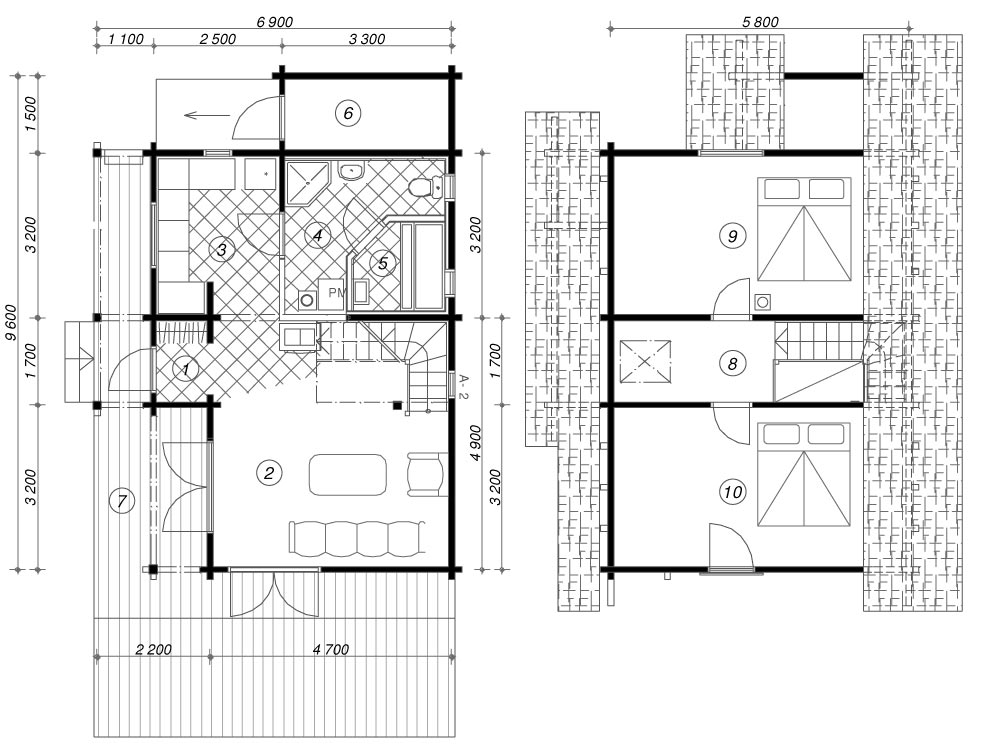
Общая площадь: 84,1м2
Линейные размеры: 6,9х9,6м
Уточнить цену! Купить проект дома

Комплектация из профилированного бруса под ключ

  • Комплектация под ключ
  • Дополнительные опции

В комплектацию «Под ключ» (с фундаментом и полной отделкой) входит:

Подготовительные работы

  • Разработка индивидуального эскизного проекта дома.
  • Замер на участке — выезд инженера для осмотра и замера перепада по участку, подъездных путей и типа грунта. Определение мест подключения инженерных коммуникаций.

Фундамент свайно-винтовой (входит в стоимость):

  • Разбивка осей фундамента,
  • Сваи рассчитаны с запасом по несущей способности без экономии на их количестве,
  • Параметры сваи диаметр 108 мм и длина 2 500 мм, диаметр лопасти 300 мм, толщина стенки сваи 4мм, лопасти 5 мм. Покрыта эпоксидным защитным составом в заводских условиях,
  • Монтаж свай производим спецтехникой,
  • Бетонирование сваи пескоцементной смесью М300,
  • Приваривание оголовка сваи 200х200 мм, прокраска мест сварки грунт эмалью,
  • Гидроизоляция «гидроизолом ХПП» по верху фундамента ,
  • Монтаж усиленного бруса обвязки сечением 150х200 мм ГОСТ 8486-86, сорт 1 ,
  • Обработка консервирующим антисептиком бруса обвязки

Конструкция свайного фундамента
Конструкция свайного фундамента

Ввод коммуникаций:

  • Закладные под канализацию диаметром 110 мм и труб водоснабжения

Комплект дома из бруса только камерной сушки:

  • Качественный профилированный брус камерной сушки – профиль гребенка
  • Брусовые стены собраны на березовые нагели
  • Каркас внутренних перегородок из сухой доски камерной сушки 100х50 ГОСТ 8486-86, сорт 1
  • Потолок и перегородки обшиты евровагонкой
  • Звукоизоляция внутренних перегородок тоже ROCKWOOL ЛАЙТ БАТС в 2 слоя (100мм)
  • Балки перекрытия цоколя 200х50 ГОСТ 8486-86, сорт 1, утепление ROCKWOOL ЛАЙТ БАТС в 4 слоя (200мм)
  • Межэтажные балки перекрытия 200х50, шумоизоляция ROCKWOOL ЛАЙТ БАТС в 2 слоя (100мм)
  • Монтаж фанеры 20мм на пол первого и второго этажей или доска пола шпунтованная сухая строганая 36 мм
  • Установка строительной межэтажной лестницы

Кровля:

  • Утепление ROCKWOOL ЛАЙТ БАТС в 3 слоя (150мм)
  • Финишное покрытие кровли металлочерепица Grand Lain PE 0,5 мм
  • Монтаж ветровой и лобовой доски
  • Подшивка свесов кровли вентилируемый качественный ПВХ софит Docke цвет белый

Конструкция кровли
Конструкция кровли

Окна и двери:

  • Пластиковые окна Rehau blitz (2 стекла) цвет белый. Фурнитура ROTO NT. Москитные сетки на все окна.
  • Подоконники пластиковые и внешние отливы на окна.
  • Дверь входная металлическая Бульдорс – порошковая окраска с 2х сторон, 2 замка, 2 контура уплотнения, зимний вариант утепления.

Доставка и монтаж:

  • Доставка материалов по Московской области.
  • Монтаж.
  • Сопутствующие материалы (оцинкованные гвозди, уголки, саморезы, кисти, антисептик, монтажная пена и другие расходные материалы для монтажа дома).

Преимущества работы с нами:

  • Только отборная древесина, которая соответствует ГОСТ 8486-86, сорт 1
  • В состав дома входят качественные комплектующие от надежных мировых брендов, которые хорошо себя зарекомендовали
  • Поэтапная оплата и приемка работ, материалов по промежуточным актам. Оплата работ только после приемки качества по конкретному этапу
  • Гарантия до 10 лет на силовые конструкции дома.
  • Возможность начала работ без предоплаты
  • Контроль строительной площадки прорабом
  • Вы всегда можете обратиться к нам за советом и консультацией как до, так и после постройки дома — по обслуживанию и содержанию дома, по настройке и работе инженерных систем.

  • Ленточный фундамент
  • Внутренняя отделка стен
  • Наружняя отделка стен
    • имитация бруса
    • фасадные панели
  • Кровельное покрытие гибкая черепица

Наши дома из бруса

Не нашли подходящий проект?Индивидуальное проектирование

Компания Дом Тебе поможет изготовить  индивидуальный проект, который наиболее соответствует желаемой стилистике и отвечает всем запросам заказчика.

СВЯЖИТЕСЬ ПРЯМО СЕЙЧАС

Top