Комплектация каркасного дома «Под ключ»
- Комплектация под ключ
- Дополнительные опции
В комплектацию «Под ключ» (с фундаментом и полной отделкой) входит:
Подготовительные работы
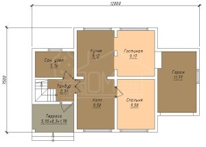
- Разработка индивидуального эскизного проекта дома.
- Замер на участке — выезд инженера для осмотра и замера перепада по участку, подъездных путей и типа грунта. Определение мест подключения инженерных коммуникаций.
Фундамент свайно-винтовой (входит в стоимость):
- Разбивка осей фундамента,
- Сваи рассчитаны с запасом по несущей способности без экономии на их количестве,
- Параметры сваи диаметр 108 мм и длина 2 500 мм, диаметр лопасти 300 мм, толщина стенки сваи 4мм, лопасти 5 мм. Покрыта эпоксидным защитным составом в заводских условиях,
- Монтаж свай производим спецтехникой,
- Бетонирование сваи пескоцементной смесью М300,
- Приваривание оголовка сваи 200х200 мм, прокраска мест сварки грунт эмалью,
- Гидроизоляция «гидроизолом ХПП» по верху фундамента ,
- Монтаж усиленного бруса обвязки сечением 150х200 мм ГОСТ 8486-86, сорт 1 ,
- Обработка консервирующим антисептиком бруса обвязки

Ввод коммуникаций:
- Закладные под канализацию диаметром 110 мм и труб водоснабжения
Комплект дома из доски только камерной сушки:
- Наружные и внутренние капитальные стены из доски сечением 150х50 ГОСТ 8486-86, сорт 1
- Внутренние перегородки из доски сечением 100х50 ГОСТ 8486-86, сорт 1
- Утепление внешних стен качественным, экологически безопасным, упругим плитным утеплителем ROCKWOOL ЛАЙТ БАТС в 3 слоя (150мм)
- Звукоизоляция внутренних перегородок тоже ROCKWOOL ЛАЙТ БАТС в 2 слоя (100мм)
- Внутренняя отделка стен и потолков вагонкой
- Балки перекрытия цоколя 200х50 ГОСТ 8486-86, сорт 1, утепление ROCKWOOL ЛАЙТ БАТС в 4 слоя (200мм)
- Межэтажные балки перекрытия 200х50, шумоизоляция ROCKWOOL ЛАЙТ БАТС в 2 слоя (100мм)
- Монтаж фанеры 20мм на пол первого и второго этажей или доска пола шпунтованная сухая строганая 36 мм
- Установка строительной межэтажной лестницы

Кровля:
- Утепление ROCKWOOL ЛАЙТ БАТС в 3 слоя (150мм)
- Финишное покрытие кровли металлочерепица Grand Lain PE 0,5 мм
- Монтаж ветровой и лобовой доски
- Подшивка свесов кровли вентилируемый качественный ПВХ софит Docke цвет белый

Окна и двери:
- Пластиковые окна Rehau blitz (2 стекла) цвет белый. Фурнитура ROTO NT. Москитные сетки на все окна.
- Подоконники пластиковые и внешние отливы на окна.
- Дверь входная металлическая – порошковая окраска с 2х сторон, 2 замка, 2 контура уплотнения, зимний вариант утепления.
Внешняя отделка:
- Отделка фасада качественный виниловый сайдинг Docke (цвет по раскладке на выбор).
Доставка и монтаж:
- Доставка материалов по Московской области.
- Монтаж.
- Сопутствующие материалы (оцинкованные гвозди, уголки, саморезы, кисти, антисептик, монтажная пена и другие расходные материалы для монтажа дома).
Преимущества работы с нами:
- Только отборная древесина, которая соответствует ГОСТ 8486-86, сорт 1
- В состав дома входят качественные комплектующие от надежных мировых брендов, которые хорошо себя зарекомендовали
- Поэтапная оплата и приемка работ, материалов по промежуточным актам.
- Гарантия на все выполненные работы.
- Возможность начала работ без предоплаты
- Контроль строительной площадки прорабом
- Вы всегда можете обратиться к нам за советом и консультацией как до, так и после постройки дома — по обслуживанию и содержанию дома, по настройке и работе инженерных систем.
- Ленточный фундамент
- Внутренняя отделка стен
- имитация бруса
- гипсокартон
- Наружняя отделка стен
- имитация бруса
- фасадные панели
- Кровельное покрытие гибкая черепица









