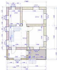
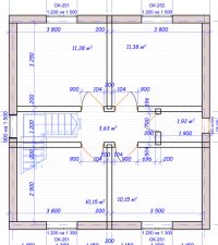
- Планировка
- Материалы
- Видео


Отделочные материалы:
- Металлочерепица STYNERGY CORUNDUM50 п/э RR 32
- Фасадные панели Docke Berg Коричневый кирпич
- Софиты GRAND LINE коричневый Amerika
- Снегозадержатели GRAND LINE 8019 (RR32) Темно-коричневый
- Аэроэлемент конька VENTAKROV
- Водосточная система GRAND LINE
- Гидро-пароизоляция Изоспан
- Утеплитель Rockwool Скандик Лайт Баттс
- Имитация бруса
- Окна Rehau Blitz New
- Лак фасадный Tecknos
- Доска пола
- Дверь TOREX SNEGIR
В комплектацию с отделкой входит:
1.Подготовительные работы
- Разработка индивидуального эскизного проекта дома
- Замер на участке — выезд инженера для осмотра и замера перепада по участку, подъездных путей и типа грунта. Определение мест подключения инженерных коммуникаций


2. Фундамент
- Свайно-винтовой
- Другие варианты фундамента
Свайно-винтовой фундамент
- Разбивка осей фундамента
- Сваи рассчитаны с запасом по несущей способности без экономии на их количестве,
- Параметры сваи диаметр 108 мм и длина 2 500 мм, диаметр лопасти 300 мм, толщина стенки сваи 4мм, лопасти 5 мм. Покрыта эпоксидным защитным составом в заводских условиях
- Монтаж свай производим спецтехникой
- Бетонирование сваи пескоцементной смесью М300
- Приваривание оголовка сваи 150х150 мм, прокраска мест сварки грунт эмалью
- Гидроизоляция по верху фундамента гидроизолом
Один из наиболее экономичных вариантов в серии ленточных– это фундамент мелкого заложения. Выглядит он как сооружение в виде ленты из железобетона. Глубина заложения ленты в земле меньше, чем уровень промерзания грунта.


Фундамент из железо-бетонных свай
Это опорная конструкция, которая состоит из бетонных столбов, снизу погружённых в землю, а сверху скреплённых каркасом из железобетона — ростверком. Основная задача свай — распределять нагрузку от постройки на грунт равномерно по всей площади.


Ленточный фундамент
Выглядит он как сооружение в виде ленты из железобетона. Глубина заложения ленты в земле может быть как выше так и ниже уровня промерзания грунта.


Плитный фундамент
Это разновидность фундамента из единого железобетонного монолита, покрывающего всю площадь застройки. Один из самых дорогих, используется для возведения каменных загородных домов, а также для строительства на слабых почвах.


3. Конструкция каркаса стен и перекрытий
- Наружные и внутренние несущие стены из доски сечением 150х50 ГОСТ 8486-86, сорт 1
- Утепление внешних стен качественным, экологически безопасным, упругим плитным утеплителем ROCKWOOL ЛАЙТ БАТС 150мм
- Внутренние перегородки из доски сечением 100х50мм ГОСТ 8486-86, сорт 1
- Звукоизоляция перегородок утеплителем ROCKWOOL ЛАЙТ БАТС 100мм
- Балки перекрытия цоколя 150х50мм ГОСТ 8486-86, сорт 1, утепление ROCKWOOL ЛАЙТ БАТС 150мм
- Балки межэтажного и чердачного перекрытия 150х50мм, теплоизоляция ROCKWOOL ЛАЙТ БАТС 150мм

4. Кровля
- Металлочерепица
- Другие варианты кровли
- Стропильная система из доски сечением 150х50 ГОСТ 8486-86, сорт 1
- Утепление мансарды ROCKWOOL ЛАЙТ БАТС 150мм
- Финишное покрытие кровли металлочерепица PE 0,5 мм
- Подшивка свесов кровли вентилируемый качественный ПВХ софит цвет белый

Профлист
Кровельный профнастил — недорогой неприхотливый надёжный материал. Он долговечен, эстетичен, практичен и отличается простым монтажом. Представляет собой стальной оцинкованный лист с покрытием. После проката на специальном оборудовании сталь принимает волнообразный вид. Жёсткость такого листа гораздо выше плоского.


Ондулин
Ондулин — легкий и крепкий материал. Это волнистые волокнистые листы, пропитанные битумом. Ондулин подходит для быстрого и относительно несложного строительства. Его важная особенность – податливость, которая обеспечивает возможность покрыть ондулином кровлю любой формы и сложности.


Фальцевая кровля
Фальц является классическим вариантом для оформления кровли, отличающимся не только привлекательным дизайном, но и исключительной стойкостью к влаге. Панели из оцинкованной стали с полимерным покрытием оснащены самозащелкивающимся замком, который обеспечивает легкость монтажа и высокую герметичность благодаря скрытому крепежу.


Гибкая черепица
Это высокотехнологичный материал, который защитит крышу от проникновения влаги. Форма крыши для монтажа такого покрытия может быть любой. У каждого материала гибкой кровли свои технологические свойства и особенности монтажа, от которых зависит выбор того или иного вида гибкой кровли.


5. Фасад
- Сайдинг
- Другие варианты фасада
- Отделка фасада качественный виниловый сайдинг (цвет по раскладке на выбор)
Качественно выполненная отделка дома сайдингом гарантирует не только привлекательный внешний вид, но и высококачественную защиту всего дома от негативной среды, снижение затрат на отопление дома, улучшает шумоизоляцию.


Фасадные панели ПВХ
Изготавливаются из полимера стойкого к высоким температурам. Производятся в виде облицовочных панелей, которые качественно имитируют материалы натурального происхождения. Панели из пластика, отличаются легкостью в обработке и невысокой стоимостью. Фасадные панели станут не только декоративным украшением дома, но и надежной зашитой от воздействия всевозможных внешних факторов.


Битумная фасадная плитка
Материал производят на основе стеклохолста, который покрыт улучшенным битумом. Сверху наносят защитный слой из гранулята нескольких оттенков. Игра цвета посыпки из натурального базальта придаёт фасаду изысканность. Прямые углы, ровные линии и выверенные пропорции нового облицовочного материала вызывают приятные ассоциации с традициями и надежностью. За основу палитры взяты самые узнаваемые оттенки: от натуральных ярких оттенков красного и коричневого до трендовых серых и антрацитовых.


Имитация бруса и блок-хаус
Не секрет, что отделка дома натуральной древесиной всегда будет считаться роскошью. Данный вид отделки востребован по нескольким причинам: надежность, экологическая безопасность, привлекательный внешний вид. Отделка дома из имитации бруса или бревна способствует хорошему воздухообмену в помещении. Дом, отделанный имитаций бруса, создает впечатление целостного сооружения, обшитого цельным брусом.


Реечный фасад
Реечные фасады — современный и перспективный вид облицовки, позволяющий создавать неповторимый внешний вид и обеспечивающий ряд преимуществ при эксплуатации. С помощью деревянных, металлических и композитных реек возможно создание оригинальных цветовых и стилистических решений.


6.Окна и двери
- Пластиковые окна Rehau Blitz двухкамерный стеклопакет (3 стекла) профиль белый 60мм. Москитные сетки и наружные отливы на все окна
- Дверь входная металлическая – снаружи порошковая окраска, изнутри МДФ, 2 замка, 2 контура уплотнения, зимний вариант утепления


7.Внутренняя отделка
- Деревянная отделка
- Другие варианты внутренней отделки
- Отделка стен и потолков вагонкой «Штиль»
- Отделка откосов деревянной строганой доской
- Подоконники деревянные
- Доска пола шпунтованная сухая строганая 36 мм
- Установка деревянной межэтажной лестницы из сосны с балясинами
Отделка имитацией бруса
Имитация бруса – качественный, эстетичный, а главное, экологически чистый материал, который часто применяется для оформления стен жилых домов. В современных условиях, когда на рынке так много синтетических материалов, именно имитация бруса дает возможность создать в доме очень приятную, теплую атмосферу, хороший микроклимат.
Отделка гипсокартоном
Отделка стен гипсокартоном позволит превратить даже неказистый деревянный сруб в уютное современное жилище. Этот материал в руках мастера творит чудеса. Гипсокартон помогает решить множество задач, которые возникают при отделке коттеджа.
Достоинства гипсокартона это:
- легкость в обработке;
- простота монтажа;
- дешевизна;
- свобода трансформации.
Покраска
На стоимость услуги влияет сразу несколько факторов. Это и отдаленность от нашей фирмы, проходимость дорог, условия работ и проживания. Но, заранее можно рассчитать цену, зная сколько квадратных метров необходимо покрасить и какие условия будут предоставлены для наших сотрудников.
Поклейка обоев
Пользуясь нашими услугами, Вы получите высококачественную работу, которая будет приносить радость и удовлетворение. А использование нами профессионального инструмента позволит выполнить оклейку стен обоями в сжатые сроки.
Декоративные панели
Любой дизайнерский проект всегда акцентируется на отделке стен. Кто-то использует разнообразные виды обоев, кто-то предпочитает тканевую отделку, но в последнее время большую популярность приобрели декоративные панели.
Декоративные панели имеют большие преимущества перед другими отделочными материалами.
Установка лестниц
Большинство собственников частных домов стараются заказывать межэтажные лестницы из дерева разнообразных пород, таких как ясень, бук, иногда дуб.
Обращаясь к нам в компанию Вы получите грамотную консультацию по выбору материала, цвету тонировки и ограждения для Вашей лестницы, быстрый расчет, понятный проект, профессиональный монтаж.
8.Инженерные системы
- Монтаж закладных
- Другие варианты инженерных коммуникаций
- Закладные под канализацию диаметром 110 мм и труб водоснабжения
Электромонтаж
Мы предоставляем услуги по проведению электропроводки любого уровня сложности (от однофазной до трехфазной). Также мы осуществляем монтаж распределительных щитов.
При монтаже электропроводки в деревянных зданиях, следует учитывать, что все работы должны производиться при соблюдении всех ГОСТов и СНиПов и иных нормативных актов.
Водоснабжение и сантехника
Если Вы хотите получить готовый комфортный дом для проживания, советуем Вам воспользоваться комплексными предложениями нашей компании. Они подразумевают проведение и установку всех необходимых коммуникаций. Стоимость комплексных пакетов ниже стоимости подключения выборочных инженерных коммуникаций, а значит, Вы можете сэкономить значительную сумму Ваших сбережений.
Отопление
В перечень услуг по установке отопительной системы входит: подготовка документации и проекта, монтаж трубопровода и оборудования, сбор отопительных узлов. Лучше всего, работы по установке отопительной системы производить непосредственно после возведения жилого здания.
Камины и печи
Мы рекомендуем доверить монтаж профессионалам. Ведь от правильного монтажа зависят ваши комфорт и безопасность. Мы предлагаем комплексные решения поставки и монтажа оборудования под ключ, с гарантией на товар и работы.
Как и в каждой отрасли, в каминном деле есть множество нюансов связанных с вопросами комфортной эксплуатации и безопасности. Доверив монтаж профессионалам, вы получите гарантированно безопасное и качественное решение.
9.Доставка и монтаж
- Доставка материалов
- Монтаж
- Сопутствующие материалы (гвозди, уголки, саморезы, кисти, антисептик, монтажная пена и другие расходные материалы для монтажа дома)
Преимущества работы с нами:
- Только отборная древесина, которая соответствует ГОСТ 8486-86, сорт 1
- В состав дома входят качественные комплектующие от надежных мировых брендов которые хорошо себя зарекомендовали
- Поэтапная оплата и приемка работ, материалов по промежуточным актам
- Гарантия на все выполненные работы
- Возможность начала работ без предоплаты
- Контроль строительной площадки прорабом
- Вы всегда можете обратиться к нам за советом и консультацией как до, так и после постройки дома — по обслуживанию и содержанию дома, по настройке и работе инженерных систем































